Продается дом 104 кв.м. 10 сот. улица 2-я Караульная, цена 7 280 000₽ руб.
| Стоимость | 7 280 000 |
|---|---|
| Коммунальные услуги включены | Нет |
| Размер части | 1 |
| Комнат в доме | 3 |
| Тип парковки | Гараж |
| Ремонт | Косметический |
| Этаж | 1 |
| Площадь участка, сот | 10 |
| Этажность | 1 |
| Населенный пункт | ДНТ Поселок Западный-Элита |
|---|---|
| Улица | улица 2-я Караульная |
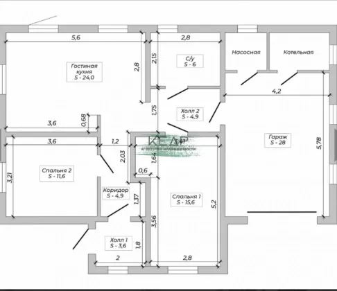
🏡 Продается подряд на строительство небольшого, уютного дома. Общая площадь до 104 м2, полностью готовый для проживания.
❗ Две уютные спальни (12,0 м2 , 10,2 м2), светлая кухня - гостиная (23 м2) с французскими окнами и выходом на освещенную террасу. Санузел совмещен.
✅ В доме предусмотрены места для расположения стенных шкафов, что значительно улучшает качество жизни, позволяя сохранять свободное пространство. Для сохранения тишины, котельное и насосное оборудование вынесено в отдельное техническое помещение.
🚗 Гараж на одно машино место (25 м2), с автоматическими подъемными воротами и парковачная площадка для второго авто.
❗ Материал стен - теплоблок (песко-бетонный блок + утеплитель + лицевая отделка). Фундамент - утепленная, монолитная П-образная плита. По всему периметру дома выполнена утепленная отмостка. Кровля Onduvilla. отделка фундамента (Docke).
❗ Отопление - биметаллические радиаторы, электрокотельная (Zota 3/6/9 кВт), пяти камерные окна, потолок натяжной со встроенными светильниками. Дом оснащен всем необходимым оборудованием и коммуникациями: эл. энергия 15 кВт, септик 5,8 м3, автономное водоснабжение (скважина до 40 м).
❗ Чистовая внутренняя отделка выполнена в мягких пастельных тонах.
❗ Строительство данного дома осуществляет акредитованный застройщик (обязательство построить дом в установленные сроки).
❗✅ Помогу оформить ипотеку, бесплатно. Комиссия, при строительстве дома с покупателя не берется.
☎ ЗВОНИТЕ! Отвечу на все вопросы.

























