Продается дом 75 кв.м. 10 сот. , цена 6 990 000₽ руб.
| Стоимость | 6 990 000 |
|---|---|
| Коммунальные услуги включены | Нет |
| Размер части | 1 |
| Площадь участка, сот | 10 |
| Этажность | 1 |
| Населенный пункт | Элитовский Сельсовет |
|---|
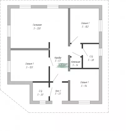
Предлагаем проект по строительству качественного дома общей площадью до 75м2, полностью готовый для проживания.
В доме расположены три уютные спальни (12,0 м2 , 10,2 м2 и 9,4 м2), светлая кухня - гостиная (23 м2) с французскими окнами и выходом на освещенную террасу. Две ванных комнаты (3 м2 и 3,8 м2).
В доме предусмотрены места для расположения стенных шкафов, что значительно улучшает качество жизни, позволяя сохранять свободное пространство. Котельное, насосное оборудование, бойлер для нагрева воды находится в отдельном техническом помещении.
Материал стен - теплоблок (песко-бетонный блок + утеплитель + лицевая отделка). Фундамент - утепленная, монолитная П-образная плита. По всему периметру дома выполнена утепленная отмостка. Кровля Onduvilla. отделка фундамента (Docke).
Отопление - биметаллические радиаторы, электрокотельная (Zota 3/6/9 кВт), пяти камерные окна, потолок натяжной со встроенными светильниками. Дом оснащен всем необходимым оборудованием и коммуникациями: эл. энергия 15 кВт, септик 5,8 м3, автономное водоснабжение (скважина до 40 м).
Чистовая внутренняя отделка выполнена в мягких пастельных тонах. Напольное покрытие – ламинат, потолки - натяжные. Санузел отделан керамогранитом, установлена ванна
По периметру участка установлен забор.
Стоимость данного дома "под ключ" указана без стоимости земельного участка. Комиссия с покупателя не взимается, помощь в оформлении ипотеки абсолютно бесплатна.























