Продается дом 75 кв.м. 10 сот. , цена 8 000 000₽ руб.
| Стоимость | 8 000 000 |
|---|---|
| Коммунальные услуги включены | Нет |
| Размер части | 1 |
| Площадь участка, сот | 10 |
| Этажность | 1 |
| Населенный пункт | Дрокино Село |
|---|
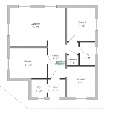
Небольшой, уютный дом, общей площадью до 75м2, полностью готовый для проживания.
Три уютные спальни (12,0 м2 , 10,2 м2 и 9,4 м2), светлая кухня - гостиная (23 м2) с французскими окнами и выходом на освещенную террасу. Две ванных комнаты (3 м2 и 3,8 м2).
В доме предусмотрены места для расположения стенных шкафов, что значительно улучшает качество жизни, позволяя сохранять свободное пространство. Для сохранения тишины, котельное и насосное оборудование вынесено в отдельное техническое помещение.
Материал стен - теплоблок (песко-бетонный блок + утеплитель + лицевая отделка). Фундамент - утепленная, монолитная П-образная плита. По всему периметру дома выполнена утепленная отмостка. Кровля Onduvilla. отделка фундамента (Docke).
Отопление - биметаллические радиаторы, электрокотельная (Zota 3/6/9 кВт), пяти камерные окна, потолок натяжной со встроенными светильниками. Дом оснащен всем необходимым оборудованием и коммуникациями: эл. энергия 15 кВт, септик 5,8 м3, автономное водоснабжение (скважина до 40 м).
Чистовая внутренняя отделка выполнена в мягких пастельных тонах.
Вашему вниманию предлагается подряд на строительство от аккредитованного застройщика (обязательство построить дом в установленные сроки)







