Продается дом 140 кв.м. 29 сот. , цена 5 000 000₽ руб.
| Стоимость | 5 000 000 |
|---|---|
| Коммунальные услуги включены | Нет |
| Размер части | 1 |
| Комнат в доме | 4 |
| Площадь участка, сот | 29 |
| Этажность | 1 |
| Населенный пункт | деревня Сухая |
|---|
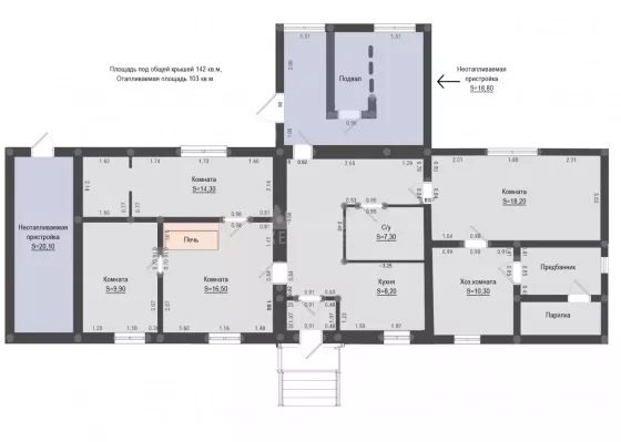
Продается дом в д. Сухая, 30 км от Красноярска по Емельяновскому тракту. Асфальт от Красноярска до ворот. ИЖС. Площадь всего дома 142 кв. м. Из них 103 кв. м, отапливаемых жилых помещений. Дом из бруса, был утеплен эковатой + сайдингом в 2019 г, установлены новые пластиковые окна. Дом полностью автономен. Водоснабжение от собственной скважины, септик. По всему дому проведена система отопления от электрокотла (ЗОТА 7,5кВт). Также имеется дровяная печь. В с/у тёплые полы. Есть большой погреб, в который можно попасть не выходя из дома. Баня-сауна так же находится в самом доме.
До 2024 года есть разрешение на реконструкцию дома, так что, по желанию, можно обустроить мансарду..
На ухоженной территории 30 соток : 2 теплицы 6*3, большой гараж с навесом, домик для животных, газоны, многолетники, ягодные культуры: вишня, малина, смородина, облепиха, яблоня , хвойники: голубые ели, сосны, кедр. Рядом лес для прогулок в любое время года.











































































