Продается дом 140 кв.м. 6 сот. , цена 7 000 000₽ руб.
| Стоимость | 7 000 000 |
|---|---|
| Коммунальные услуги включены | Нет |
| Размер части | 1 |
| Комнат в доме | 3 |
| Право собственности | Собственник |
| Ремонт | С отделкой |
| Категория земли Avito | Садовое некоммерческое товарищество (СНТ) |
| Материал стен (Авито дома) | Брус |
| Тип отопления cian | Электрическое |
| Тип дома cian | Деревянный |
| Номер телефона для подключения функционала чатов. выгрузка | 9135119064 |
| Водоснабжение avito | Центральное |
| Канализация avito | Септик |
| Газ avito | Нет |
| Площадь участка, сот | 6 |
| Этажность | 1 |
| Населенный пункт | Красноярск |
|---|
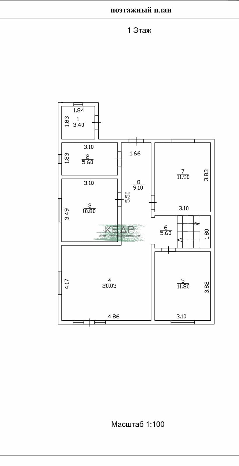
Дом построен из бруса, расположен в непосредственной близости от школы в Солонцах.
В доме расположено 3 спальных комнаты, кухня-гостиная, отдельная гардеробная комната, техническая комната, совмещенный санузел.
Кухня-гостиная создает уютную атмосферу для семейных ужинов и вечерних посиделок.
Техническая комната обеспечивает все необходимые удобства для поддержания дома в рабочем состоянии.
Второй этаж: свободная планировка с выходом на стильный балкон, открывающий вид на окрестности.
Две террасы для отдыха на свежем воздухе
Дом оснащен всеми коммуникациями:
Электрокотел и теплые водяные полы
Чистая вода из собственной скважины.
Надежное водоотведение — септик на 6 куб. м.
Электричество 15 кВт с возможностями для любых потребностей.
Приточно- вытяжная вентиляция для вашего комфорта.



































